logo
Anuncios Motor, Inmobiliaria . Empleo , Formación y libros , Servicios , Informática de segunda mano.
Publicar

Venta de trasteros

Encontrados 548 anuncios.
Inmobiliaria en tenerife
VENTA TRASTEROS PUERTO DE LA CRUZ

Hola, ponemos en VENTA varios trasteros según los colores del plano adjunto.
Como algunos eran muy grandes los hemos dividido en dos o en tres. Los puedes ver en la foto adjunta según colores.
PRECIOS Y MEDIDAS
Color amarillo: VENDIDO.
Color verde: VENDIDO.
Color azul : VENDIDO.
# COLOR LILA: 11,37+3,1+3,08 = 17,55 m2 aprox por 16.500€ ( DISPONIBLE ).
# COLOR ROSA: 6,08+6,33+7,3= 19,71 M2 aprox por 16.500€ (DISPONIBLE ).
Son ideales para sacar esas cosas que tienes en casa pero que todavía necesitas y así ganas espacio o bien puedes usarlo como pequeño almacen para tu negocio o actividad.
Si los quieres como inversion, la rentabilidad por alquiler puede estar por encima del 10% y podría llegar al 15% por la alta demanda en la zona.
En pleno centro del casco peatonal de Puerto de la Cruz, calle San Juan, junto al antiguo colegio de Los Agustinos.
Si estás interesad@ envíame un mensaje por WhatsApp para hacer visita.
El coste de la comunidad no llega a 5 €/mes y el del IBI es de menos de 30 €/año.
Teléfonos 609284493 y 630.907.704

Inmobiliaria en cadiz
Conil de la Frontera

Ref: 000389. Venta de trasteros recién construidos en pleno centro comercial de Conil.
Son 13 trasteros de diferente superficie, próxima entrega a final de año.
PREGUNTAR PRECIO SEGÚN SUPERFICIE. RESERVADO TRASTERO NUMERO 13.

Inmobiliaria en huelva
Huelva Capital

Ref: HV01200039. Venta de Trastero en Calle ARQUITECTO ALEJAN HERRERO Nº 19 Huelva.

ACTIVO INMOBILIARIO SIN POSESION.

No se puede visitar el interior del inmueble ACTIVO SIN POSESIÓN. ¡¡¡OPORTUNIDAD PARA INVERSORES!!! los impedimentos para que el inmueble pueda ser visitado libremente por los técnicos impidiendo su tasación oficial, por lo que el inmueble, mientras perdure la situación, no podrá ser hipotecado, salvo que el comprador presente otro tipo de garantías en caso de solicitarse financiación, como puede ser que tenga otra propiedad o algún tipo de avalista.

El precio no tiene incluido aquellos gastos que por Ley le pudiera corresponder a la parte adquirente, tales como ITP, IVA, Notaría y Registro.

- Esta propiedad NO se puede ver interiormente, pero si conocer su ubicación exacta y características detalladas (no disponemos de fotos del interior)

IKESA es una agencia homologada de diferentes Entidades Financieras, Fondos de Inversión, Servicies, disponemos de una amplia cartera de Activos Inmobiliarios, consúltenos sin compromiso.

PARA MÁS INFO: Rocío - 657 89 07 99 - [email protected]

Inmobiliaria en badajoz
Badajoz Capital

Ref: 00283. ¡Trastero en venta en pleno centro y con muy buena ubicación! Superficie total de unos 6 m² y acceso por ascensor. Posibilidad de venta con plaza de garaje de unos 12 m² (precio a consultar).

Inmobiliaria en vizcaya
Erandio

Ref: MURE-006127. NO COBRAMOS COMISIÓN DE INTERMEDIACIÓN AL COMPRADOR

Excelente oportunidad de adquirir en propiedad este trastero ubicado en la localidad de Erandio, provincia de Vizcaya. Dispone de buenos accesos tiene buena maniobrabilidad y está bien comunicado.

Trasteros en planta -1. Precio 5.500€

Olvida tus problemas de almacenamiento y espacio con el trastero que te ofrecemos. Cuenta con un espacio extra para almacenar tus pertenencias. Puedes guardar objetos que no utilizas con frecuencia, como muebles, ropa de temporada, equipos deportivos, herramientas o artículos decorativos. Esto ayuda a mantener tu vivienda más organizada y despejada. Al trasladar los artículos menos utilizados al trastero, puedes liberar espacio en tu hogar para que sea más funcional y cómodo. Esto es especialmente valioso en viviendas más pequeñas donde el espacio es limitado.

Situado en planta sótano de edificio de viviendas plurifamiliar junto a los garajes. Se puede acceder por el acceso directo desde el ascensor comunitario o escaleras. También podrás usar la amplia entrada de vehículos.

Erandio es una localidad muy bien conectada con el resto de Vizcaya. Los barrios de Lutxana, Altzaga y Astrabudua disponen de estaciones de metro, lo cual es muy agradecido por los habitantes. Por Erandio pasan múltiples líneas de Bizkaibus y el municipio cuenta con sus propios mini autobuses.

Hipoges es una plataforma inmobiliaria donde podrás acceder a miles de activos inmobiliarios de diferentes tipos como viviendas, locales comerciales, terrenos, nueva obra... tanto a nivel particular como para inversores. Hipoges cuenta con una amplia cartera de activos inmuebles tanto en España como en Portugal y Grecia.


¿Necesitas financiación? Te ofrecemos la posibilidad de financiaciones de hasta el 100% para la compra de este inmueble. Entra en Finanwin.com, haz tu simulación y obtén la mejor oferta para tu Hipoteca de la manera más ágil y sencilla.

Inmobiliaria en vizcaya
Santurtzi

Ref: 1110. Inmobiliaria Santurtzi ofrece en venta este trastero de unos 11 m² ubicado en Virgen del Mar.

Tiene un forma rectangular con la parte trasera en chaflán.

El trastero está situado dentro de las instalaciones de un garaje.

El importe de comunidad es de 157€ al año.

Si necesitas un espacio extra y vives por esta zona, contacta con nosotras.

Inmobiliaria en barcelona
Navarcles

Ref: 60517630. Trastero ubicado en un edificio con ascensor, en zona céntrica de Navarcles. Próxima al Ayuntamiento. Cerca de superficies comerciales y oficinas.

Solicite más información sin ningún tipo de compromiso.

Inmobiliaria en barcelona
Piera

Ref: 60510181. Trastero en la planta baja de un edificio residencial
Ubicada en la Urbanización Can Rovira de l'Estela, tranquila a unos escasos 5 Km del caso urbano de Piera por la BV-2243
Cerca de superficies comerciales, centros académicos y oficinas
Dispone de buenas comunicaciones tanto por carretera como por transporte público.

Solicite más información sin ningún tipo de compromiso.

Inmobiliaria en caceres
Guijo de Granadilla

Ref: OG220301. QUARZO Real Estate vende amplio almacén en Guijo de Granadilla.

Cuenta con una superficie de 106m2 distribuidos en una amplia zona, lo que es ideal, para guardar todo tipo de cosas.

Está ubicado en Guijo de Granadilla, municipio perteneciente a Cáceres. La proximidad a calles principales del municipio hace que las comunicaciones en automóvil sean fáciles y las salidas rápidamente accesibles.

Para más información no dude en contactar con nosotros.

Inmobiliaria en huelva
Huelva Capital

Ref: HV01200041. Venta de Trastero en Calle ARQUITECTO ALEJAN HERRERO Nº 19 Huelva.

ACTIVO INMOBILIARIO SIN POSESION.

No se puede visitar el interior del inmueble ACTIVO SIN POSESIÓN. ¡¡¡OPORTUNIDAD PARA INVERSORES!!! los impedimentos para que el inmueble pueda ser visitado libremente por los técnicos impidiendo su tasación oficial, por lo que el inmueble, mientras perdure la situación, no podrá ser hipotecado, salvo que el comprador presente otro tipo de garantías en caso de solicitarse financiación, como puede ser que tenga otra propiedad o algún tipo de avalista.

El precio no tiene incluido aquellos gastos que por Ley le pudiera corresponder a la parte adquirente, tales como ITP, IVA, Notaría y Registro.

- Esta propiedad NO se puede ver interiormente, pero si conocer su ubicación exacta y características detalladas (no disponemos de fotos del interior)

IKESA es una agencia homologada de diferentes Entidades Financieras, Fondos de Inversión, Servicies, disponemos de una amplia cartera de Activos Inmobiliarios, consúltenos sin compromiso.

PARA MÁS INFO: Rocío - 657 89 07 99 - [email protected]

Inmobiliaria en guipuzcoa
Hondarribia

Ref: G2550. En HONDARRIBIA, ITSASARGI, SE VENDE TRASTERO de 5,68 m2, en planta sótano.
Disponemos de más trasteros en este mismo inmueble, con distintos metrajes y precios: desde los 5,68 m2 (15.847€ más IVA) hasta 11,45 m2 (30.800€ más IVA). Consulte sin compromiso tanto el tamaño como el precio de los mismos.

Todos los trasteros disponen de luz y enchufe. Asimismo están equipados con ventilación mecánica.

MUY BIEN SITUADO y COMUNICADO.

AGENCIA INMOBILIARIA y ASESORÍA JURÍDICA NUEVO GROS es una agencia inmobiliaria con más de 35 años de experiencia, que cuenta con Agentes de la Propiedad Inmobiliaria y Abogados EXPERTOS EN DERECHO INMOBILIARIO, para el asesoramiento de nuestros clientes en la COMPRA-VENTA y ALQUILER de fincas. Para cualquier consulta no dude en llamarnos. [IW]

Inmobiliaria en cadiz
El Bosque

Ref: 36. TLF: 600 280 386 # Acceso 24h # Zona de carga y descarga #

Inmobiliaria en malaga
Antequera

Ref: TRA0002. OPORTUNIDAD!!! Trastero en venta a 20 M de Alameda de Andalucía, centro de Antequera
Superficie de 7,23 m2
Situado en planta sótano de edificio, con fácil acceso.
Visite esta propiedad sin compromiso.

En Mike`s Home inmobiliaria trabajamos al servicio del cliente para ofrecer las mejores propiedades a la venta y alquiler
En cumplimiento del RD de la Junta de Andalucía 218/2005 de 11 de octubre se informa a los clientes que en el precio indicado no están incluidos los gastos derivados de la compra (IVA, IAJD, ITP, GASTOS NOTARIALES Y REGISTRALES. )
No existen honorarios de intermediación inmobiliaria adicionales al precio de venta.
Esta propiedad puede estar sujeta a cambio de precio, venta o retirada del mercado. [IW]

Inmobiliaria en jaen
Los Villares

Ref: SRV06080461. VENTA SIN COMISIÓN

Trastero en venta en c. Francisco Bonilla, Los Villares, Jaén

Trastero en Los Villares. Ubicado en la planta baja.

Municipio muy próximo a Jaén, situado a tan solo 9 kilómetros y bien comunicado a través de la A-6050. El entorno donde se encuentra es céntrico, próximo al Ayuntamiento y a todos los servicios

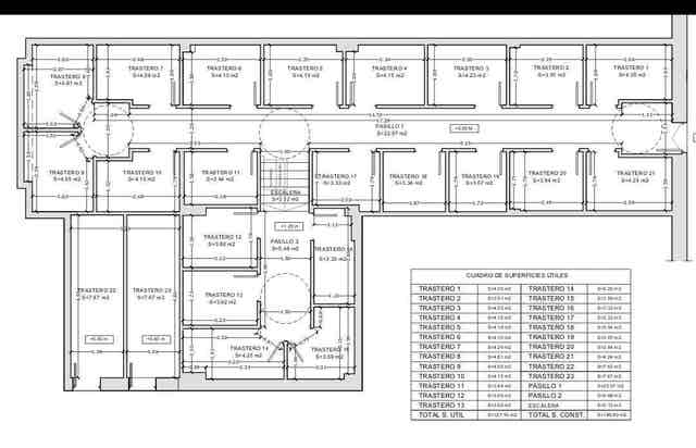
Inmobiliaria en cadiz
Trasteros doble altura, venta y alquiler

23 trasteros de doble altura, de nueva construcción de 3m2 a 7m2 de superficie con más de 4 metros de alto. Con esa altura son casi 2 trasteros en 1.
Calle Escultor Bey, San Fernando. Contacta para más información.

1
...
13 14 15 16 17 18
...
36